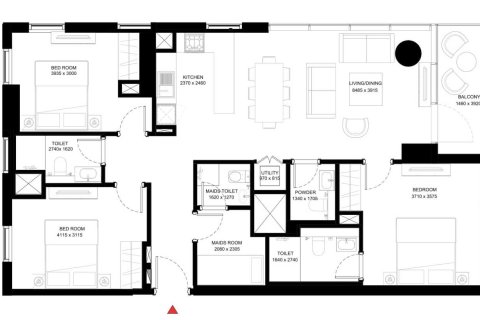
Appartement de 3 chambres à CREEK VISTAS HEIGHTS No. 109211

ID109211
$ 1 029 665
Installations intérieures
Installations pour enfants
- Salle de jeux pour enfants
La nourriture et les boissons
- Restaurant
Caractéristiques extérieures
Installations pour enfants
- Terrain de jeux pour enfants
Parking
- Parking
Contacter le vendeur
Sobha Hartland - Mohammed Bin Rashid Al Maktoum City - Nad Al Sheba - Nad Al Sheba 1 - Dubai - UAE
Appartement
3
175 m²
- m²
- pi2
15 km
10.1 km
II quartier, 2026
$ 1 029 665
Offres similaires
Offrir votre prix













